Ascot Park 2/18 Sixth Avenue

Enquire Now
< >
Sold

Townhouse with 3 Bedrooms and 2 Courtyards!


  • Sold

    3 1 1
  • Share This Property


Bonus – Pets allowed!

Freshly painted throughout, with brand new carpets and blinds, this naturally light-filled townhouse is sure to impress!

Private and secure, with 2 private courtyards – great for relaxing and entertaining!

North facing street frontage and in a small and quiet group of 4 only, this attractive townhouse c1991 is situated in a great location.

Close to bus transport, Park Holme, Marion and Castle Plaza shopping centres, local schools, and easy access to Flinders University and Hospitals.

Just move in and enjoy!

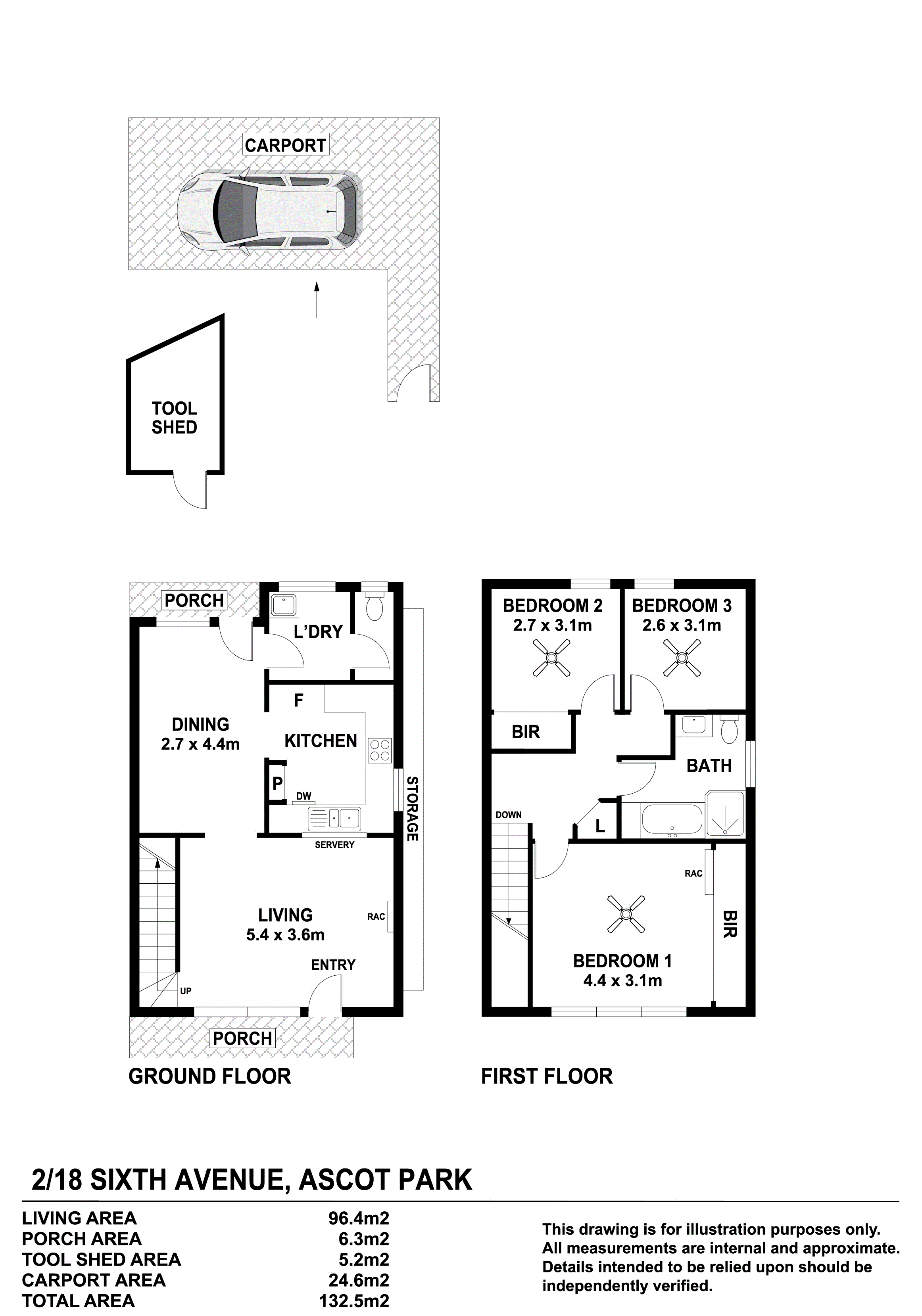
3 Bedrooms upstairs – main with full size BIRLarge living room with big window and delightful front garden outlookPractical kitchen with dishwasher and pantrySeparate dining Bathroom with bath, shower recess, new vanity and WC Laundry and Second WC adjacentHeating and cooling – split systems in living and main bedroom, also ceiling fans in all 3 bedrooms2 paved courtyards – front yard with lawn and easy maintenance garden, rear yard with garden/tool shed plus lock up storage unit at side of propertyUndercover carport at rear
A REAL GEM!

RLA 274363

Property Features

  • Uncovered Carspaces 1
Century 21 Central Central
171 Goodwood Road
Millswood SA 5034
Ask About This Property


Local Information Ascot Park

Education in Ascot Park

Government Schools

  • Ascot Park Primary School
  • Kilparrin Teaching and Assessment School and Services
  • SA School for Vision Impaired
  • Forbes Primary School
  • Hamilton Secondary College
  • Clovelly Park Primary School
  • Marion Primary School
  • Edwardstown Primary School

Private Schools

  • Sacred Heart College - Middle School Campus
  • Meridian School Incorporated
  • Emmaus Christian College
  • Westminster School
  • St Anthony's School
  • St John the Baptist Catholic School
  • St Bernadette's School
  • Our Lady of Grace School

Local Amenities in Ascot Park

Sport and Recreation

  • Ascot Park Bowling Club
  • Edwardstown Memorial Oval
  • Edwardstown Bowling Club
  • Marion Boating Pool

Parks

  • Cowra Crescent Reserve
  • South Park Holme Reserve
  • Yanyarrie Reserve
  • Mulcra Avenue Reserve

Services

  • Edwardstown West Post Office
  • Clovelly Park Post Office
  • Edwardstown Post Office
  • Clarence Gardens Post Office

Viticulture

  • Hamiltons Winery

Healthcare

  • Repatriation General Hospital
Ascot Park Primary School
Primary Public Co-ed
Kilparrin Teaching and Assessment School and Services
Special Public Co-ed
SA School for Vision Impaired
Special Public Co-ed
Forbes Primary School
Primary Public Co-ed
School Website
Hamilton Secondary College
Secondary Public Co-ed
Clovelly Park Primary School
Primary Public Co-ed
Marion Primary School
Primary Public Co-ed
School Website
Edwardstown Primary School
Primary Public Co-ed
Daws Road Centre
Special Public Co-ed
Warradale Primary School
Primary Public Co-ed
William Light R-12 School
Combined Public Co-ed
Plympton Primary School
Primary Public Co-ed
School Website
Springbank Secondary College
Secondary Public Co-ed
Errington Special Education Centre
Special Public Co-ed
Black Forest Primary School
Primary Public Co-ed
Colonel Light Gardens Primary School
Primary Public Co-ed
Glenelg Primary School
Primary Public Co-ed
School Website
Paringa Park Primary School
Primary Public Co-ed
Westbourne Park Primary School
Primary Public Co-ed
St Leonards Primary School
Primary Public Co-ed
Brighton Secondary School
Secondary Public Co-ed
Clapham Primary School
Primary Public Co-ed
School Website
Brighton Primary School
Primary Public Co-ed
Australian Science and Mathematics School
Secondary Public Co-ed
Darlington Primary School
Primary Public Co-ed
Goodwood Primary School
Primary Public Co-ed
Seaview High School
Secondary Public Co-ed
Eden Hills Primary School
Primary Public Co-ed
Richmond Primary School
Primary Public Co-ed
Mitcham Girls High School
Secondary Public Girls
Warriappendi School
Secondary Public Co-ed
Bellevue Heights Primary School
Primary Public Co-ed
Mitcham Primary School
Primary Public Co-ed
Sacred Heart College - Middle School Campus
Combined Private Boys
School Website
Meridian School Incorporated
Combined Private Co-ed
Emmaus Christian College
Combined Private Co-ed
Westminster School
Combined Private Co-ed
St Anthony's School
Primary Private Co-ed
St John the Baptist Catholic School
Primary Private Co-ed
St Bernadette's School
Primary Private Co-ed
Our Lady of Grace School
Primary Private Co-ed
Our Lady of La Vang School
Special Private Co-ed
Immanuel College
Combined Private Co-ed
Immanuel Primary School
Primary Private Co-ed
Suneden Special School
Special Private Co-ed
Christ the King School
Primary Private Co-ed
School Website
St Therese Primary School
Primary Private Co-ed
School Website
Sunrise Christian School - Marion Campus
Combined Private Co-ed
Cabra Dominican College
Combined Private Co-ed
Sacred Heart College
Combined Private Co-ed
School Website
St Peter's Woodlands Grammar School Incorporated
Primary Private Co-ed
St Mary's Memorial School
Primary Private Co-ed
Marymount College
Combined Private Girls
Stella Maris Parish School
Primary Private Co-ed
St Thomas' School
Primary Private Co-ed
St Teresa's School
Primary Private Co-ed
Scotch College
Combined Private Co-ed
Tenison Woods Catholic Primary School
Primary Private Co-ed
St Joseph's School
Primary Private Co-ed
Walford Anglican School for Girls
Combined Private Girls