Morphettville 4/14 Hendrie Street

Enquire Now
< >
Sold

Sold by Alex Lefty!


  • Sold
    $297,500

    2 1 1
  • Share This Property


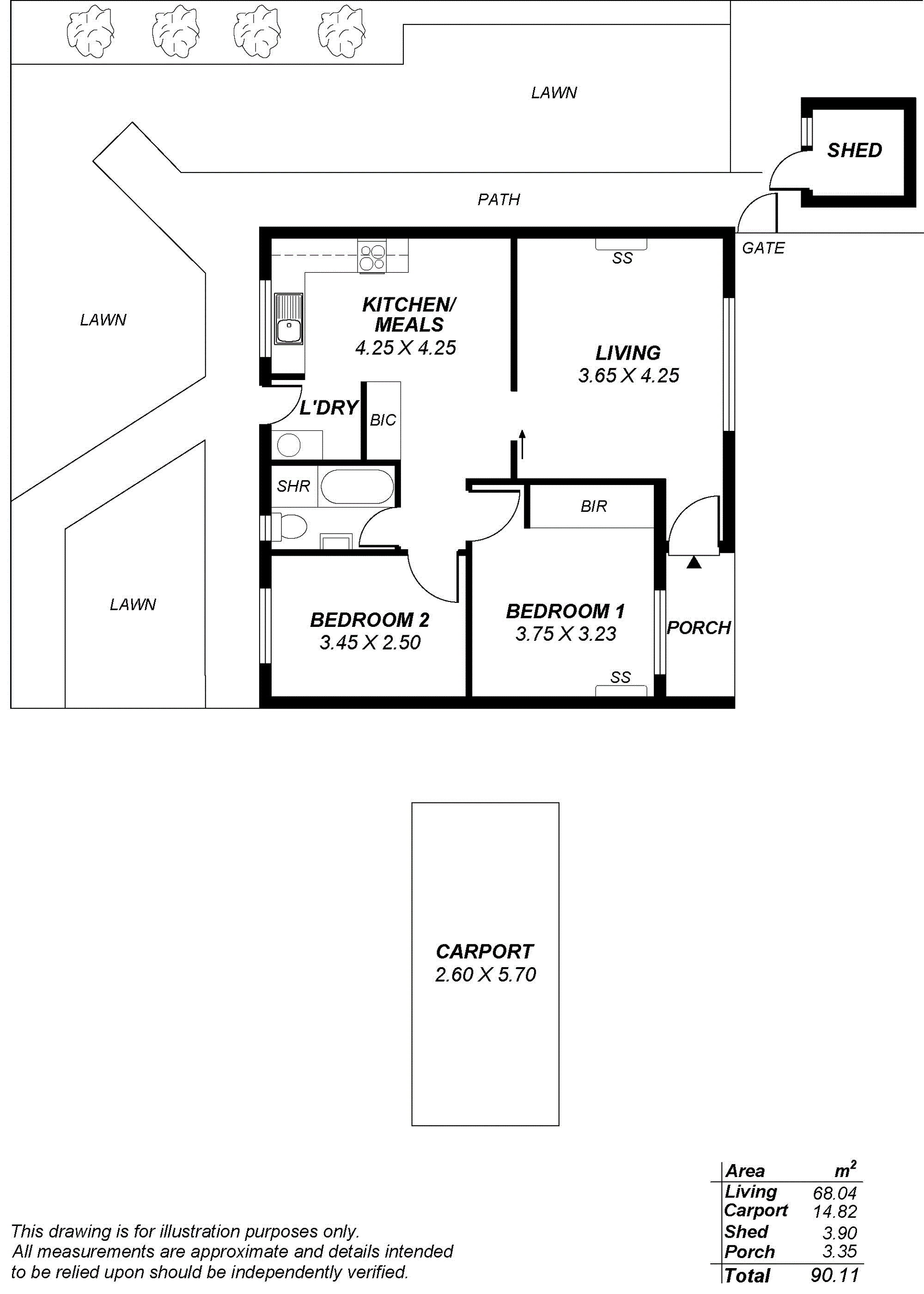
RENOVATED DELIGHT!

This gorgeously renovated unit is ready to move into!

Tonnes of storage, all the mod-cons you could ask for, huge outdoor area with a shed, as well as heating and cooling.

A unit this size doesn't come along very often, so be quick! Decorated in neutral tones and boasting timber style floorboards throughout.

Two great size bedrooms – main with built-in robes and split system A/C. Brand new kitchen with gas cooking and lots of cupboard space. Updated bathroom with separate bath and separate laundry. Large lounge room with split system heating and cooling plus under cover parking.

Located in a very quiet group of four.

Another Century 21 Central property highly recommended for viewing!

RLA 274363

Property Features

  • Uncovered Carspaces 1
Century 21 Central Central
171 Goodwood Road
Millswood SA 5034
Ask About This Property


Local Information Morphettville

Education in Morphettville

Government Schools

  • Ascot Park Primary School
  • Forbes Primary School
  • Kilparrin Teaching and Assessment School and Services
  • SA School for Vision Impaired
  • Hamilton Secondary College
  • William Light R-12 School
  • Glenelg Primary School
  • Errington Special Education Centre

Private Schools

  • Our Lady of Grace School
  • Immanuel Primary School
  • Immanuel College
  • Emmaus Christian College
  • St John the Baptist Catholic School
  • Sacred Heart College - Middle School Campus
  • Westminster School
  • St Peter's Woodlands Grammar School Incorporated

Local Amenities in Morphettville

Parks

  • Mulcra Avenue Reserve
  • Cowra Crescent Reserve
  • Angas Recreation Park
  • Kellett Reserve

Sport and Recreation

  • Marion Boating Pool
  • Ascot Park Bowling Club
  • Camden Oval
  • Edwardstown Bowling Club

Viticulture

  • Hamiltons Winery

Services

  • Edwardstown West Post Office
  • Camden Park Post Office
  • Campden Park Fire Station
  • Novar Gardens Post Office

Healthcares

  • Waterworth Hospital
  • Glenelg Community Hospital
  • Glenelg District Community Hospital

Community Facility

  • Buffalo Restaurant & Museum
Ascot Park Primary School
Primary Public Co-ed
Forbes Primary School
Primary Public Co-ed
School Website
Kilparrin Teaching and Assessment School and Services
Special Public Co-ed
SA School for Vision Impaired
Special Public Co-ed
Hamilton Secondary College
Secondary Public Co-ed
William Light R-12 School
Combined Public Co-ed
Glenelg Primary School
Primary Public Co-ed
School Website
Errington Special Education Centre
Special Public Co-ed
Clovelly Park Primary School
Primary Public Co-ed
Marion Primary School
Primary Public Co-ed
School Website
Warradale Primary School
Primary Public Co-ed
Plympton Primary School
Primary Public Co-ed
School Website
St Leonards Primary School
Primary Public Co-ed
Edwardstown Primary School
Primary Public Co-ed
Paringa Park Primary School
Primary Public Co-ed
Daws Road Centre
Special Public Co-ed
Brighton Secondary School
Secondary Public Co-ed
Black Forest Primary School
Primary Public Co-ed
Springbank Secondary College
Secondary Public Co-ed
Brighton Primary School
Primary Public Co-ed
Westbourne Park Primary School
Primary Public Co-ed
Colonel Light Gardens Primary School
Primary Public Co-ed
Darlington Primary School
Primary Public Co-ed
Richmond Primary School
Primary Public Co-ed
Warriappendi School
Secondary Public Co-ed
Seaview High School
Secondary Public Co-ed
Australian Science and Mathematics School
Secondary Public Co-ed
Goodwood Primary School
Primary Public Co-ed
Clapham Primary School
Primary Public Co-ed
School Website
Cowandilla Primary School
Primary Public Co-ed
Mitcham Girls High School
Secondary Public Girls
Lockleys Primary School
Primary Public Co-ed
Eden Hills Primary School
Primary Public Co-ed
West Beach Primary School
Primary Public Co-ed
Our Lady of Grace School
Primary Private Co-ed
Immanuel Primary School
Primary Private Co-ed
Immanuel College
Combined Private Co-ed
Emmaus Christian College
Combined Private Co-ed
St John the Baptist Catholic School
Primary Private Co-ed
Sacred Heart College - Middle School Campus
Combined Private Boys
School Website
Westminster School
Combined Private Co-ed
St Peter's Woodlands Grammar School Incorporated
Primary Private Co-ed
Sacred Heart College
Combined Private Co-ed
School Website
St Anthony's School
Primary Private Co-ed
Meridian School Incorporated
Combined Private Co-ed
Christ the King School
Primary Private Co-ed
School Website
St Mary's Memorial School
Primary Private Co-ed
Our Lady of La Vang School
Special Private Co-ed
St Bernadette's School
Primary Private Co-ed
Suneden Special School
Special Private Co-ed
Sunrise Christian School - Marion Campus
Combined Private Co-ed
Marymount College
Combined Private Girls
Cabra Dominican College
Combined Private Co-ed
St Therese Primary School
Primary Private Co-ed
School Website
St Teresa's School
Primary Private Co-ed
Stella Maris Parish School
Primary Private Co-ed
Tenison Woods Catholic Primary School
Primary Private Co-ed
St Thomas' School
Primary Private Co-ed
St John Bosco School
Primary Private Co-ed
Walford Anglican School for Girls
Combined Private Girls