Banksia Park 223 Hancock Road

Enquire Now
< >
Sold

Spacious Solid Brick Family Home on Large Allotment


  • Sold
    $350,000

    3 1 4
  • Share This Property


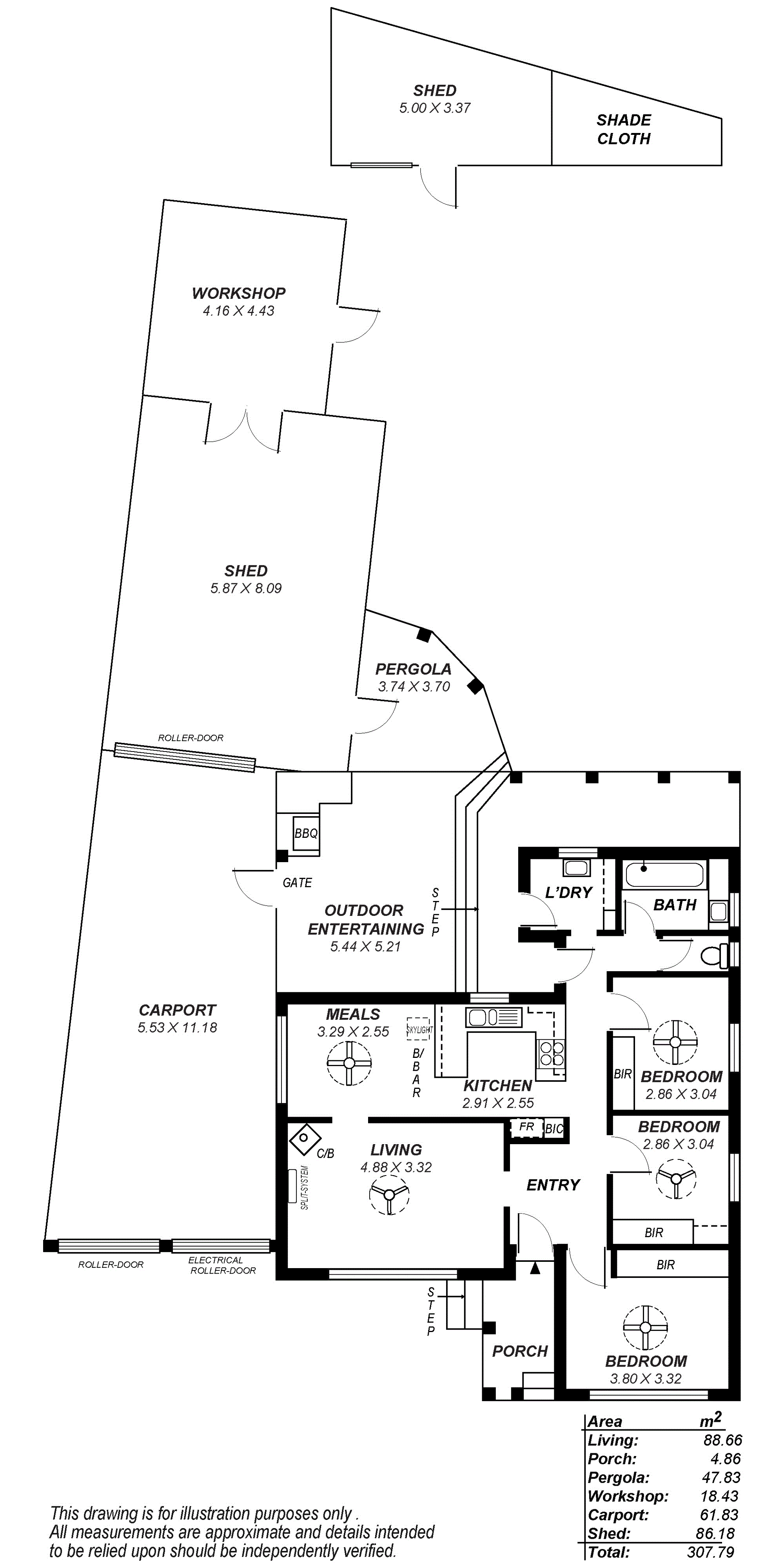
This family home has everything to offer! Great for entertaining, loads of storage, workshop facilities and large rear yard.

Location does not get much better with a sheltered bus stop at your door step with easy commute to Tea Tree Plaza and the City.

Quality public and private schools within walking distance. St Agnes shopping centre is down the road with one of the best Coles in the state, an Aldi and specialty shops.

Finding things to do on the weekend is easy with plenty of parks, creeks and playgrounds within walking distance and Anstey Hill Recreation Park just up the road with walking trails and mountain bike tracks.

Walk into the light filled entrance way with gorgeous timber floors throughout, this home offers 3 bedrooms all with built in robes and ceiling fans.

To the left of the entrance is the spacious lounge with a combustion heater that elevates the whole house with a toasty warmth on these cold winter nights, and there is also a split system air conditioner so you can have all year-round comfort.

The kitchen has been updated and has an abundance of bench and cupboard space including overhead cabinetry and a Puratap. Adjacent is a large dining area complete with a ceiling fan. The sparkling white bathroom is central to the bedrooms and has a separate laundry.

Step outside to the large undercover entertaining area that has a built in BBQ for extra convenience.

There's plenty of space for the kids to run around in the secured rear yard and lush garden beds that surround.

The beauty of this home is the powered garage with an attached workshop, it has a double roller door so you can easily store the boat or caravan and has a security alarm for peace of mind. There is a second shed at the rear with power for extra storage.

Completing this great family home is a double garage with one auto roller door and roller shutters on most windows.

What WE LOVE about this home:

Three generous sized bedrooms with built in robesNatural light filled lounge with combustion heaterKitchen with open plan dining Loads of undercover garaging plus workshop and alarmed shed Large rear yard for the kids or future improvementsCovered outdoor entertaining area with built in BBQ
RLA 274363

Property Features

  • Garages 2
  • Uncovered Carspaces 2
Century 21 Central Central
171 Goodwood Road
Millswood SA 5034
Ask About This Property


Local Information Banksia Park

Education in Banksia Park

Government Schools

  • Banksia Park International High School
  • Ridgehaven Primary School
  • Banksia Park School R-7
  • Tea Tree Gully Primary School
  • Redwood Park Primary School
  • Surrey Downs R-7 School
  • St Agnes Primary School
  • Fairview Park Primary School

Private Schools

  • Saint David's Parish School
  • St Francis Xavier's Regional Catholic School
  • Gleeson College
  • Golden Grove Lutheran Primary School
  • Pedare Christian College
  • Pedare Christian College - Primary School Campus
  • Torrens Valley Christian School
  • King's Baptist Grammar School

Local Amenities in Banksia Park

Parks

  • Jasper Reserve
  • Marsha Reserve
  • Browning Drainage Reserve
  • Milton Drainage Reserve

Sport and Recreation

  • Banksia Park Sport Area
  • Tea Tree Gully Sports Area
  • Banksia Park Sports Area
  • Pertaringa Oval

Viticulture

  • Angoves Winery

Services

  • Tea Tree Gully Post Office
Banksia Park International High School
Secondary Public Co-ed
Ridgehaven Primary School
Primary Public Co-ed
School Website
Banksia Park School R-7
Primary Public Co-ed
Tea Tree Gully Primary School
Primary Public Co-ed
Redwood Park Primary School
Primary Public Co-ed
Surrey Downs R-7 School
Primary Public Co-ed
School Website
St Agnes Primary School
Primary Public Co-ed
Fairview Park Primary School
Primary Public Co-ed
Ardtornish Primary School
Primary Public Co-ed
Modbury School Preschool to Year 7
Primary Public Co-ed
Golden Grove High School
Secondary Public Co-ed
Modbury High School
Secondary Public Co-ed
Golden Grove Primary School
Primary Public Co-ed
Wynn Vale R-7 School
Primary Public Co-ed
School Website
The Heights School
Combined Public Co-ed
Modbury South Primary School
Primary Public Co-ed
Modbury Special School
Special Public Co-ed
Highbury Primary School
Primary Public Co-ed
Keithcot Farm Primary School
Primary Public Co-ed
Modbury West School
Primary Public Co-ed
School Website
East Para Primary School
Primary Public Co-ed
Greenwith Primary School
Primary Public Co-ed
Gulfview Heights Primary School
Primary Public Co-ed
Para Vista Primary School
Primary Public Co-ed
Para Hills School P-7
Primary Public Co-ed
Valley View Secondary School
Secondary Public Co-ed
Madison Park School
Primary Public Co-ed
Keller Road Primary School
Primary Public Co-ed
Athelstone School
Primary Public Co-ed
Salisbury East High School
Secondary Public Co-ed
Para Hills High School
Secondary Public Co-ed
Ingle Farm East Primary School
Primary Public Co-ed
Para Hills West Primary School
Primary Public Co-ed
Wandana Primary School
Primary Public Co-ed
Dernancourt School R-7
Primary Public Co-ed
North Ingle School
Primary Public Co-ed
Paradise Primary School
Primary Public Co-ed
Ingle Farm Primary School
Primary Public Co-ed
Salisbury Heights Primary School
Primary Public Co-ed
Paracombe Primary School
Primary Public Co-ed
Brahma Lodge Primary School
Primary Public Co-ed
Salisbury Park Primary School
Primary Public Co-ed
Windsor Gardens Secondary College
Secondary Public Co-ed
School Website
Adelaide East Education Centre
Special Public Co-ed
Saint David's Parish School
Primary Private Co-ed
St Francis Xavier's Regional Catholic School
Primary Private Co-ed
Gleeson College
Secondary Private Co-ed
Golden Grove Lutheran Primary School
Primary Private Co-ed
Pedare Christian College
Combined Private Co-ed
School Website
Pedare Christian College - Primary School Campus
Primary Private Co-ed
Torrens Valley Christian School
Combined Private Co-ed
School Website
King's Baptist Grammar School
Combined Private Co-ed
Good Shepherd Lutheran School
Primary Private Co-ed
Our Lady of Hope School
Primary Private Co-ed
Prescott Primary School, Northern
Primary Private Co-ed
School Website
Tyndale Christian School
Combined Private Co-ed
Kildare College
Secondary Private Girls
Pinnacle College
Primary Private Co-ed
St Paul's College
Combined Private Boys
School Website
Saint Ignatius' College
Combined Private Co-ed