Darlington 1-2/31 Brookside Road

Enquire Now
< >
Sold

Gross Income $26,592 Pa Outstanding Opportunity - Both Units Let Providing Immediate Return!


  • Sold
    $390,000

    3 1 2
  • Share This Property


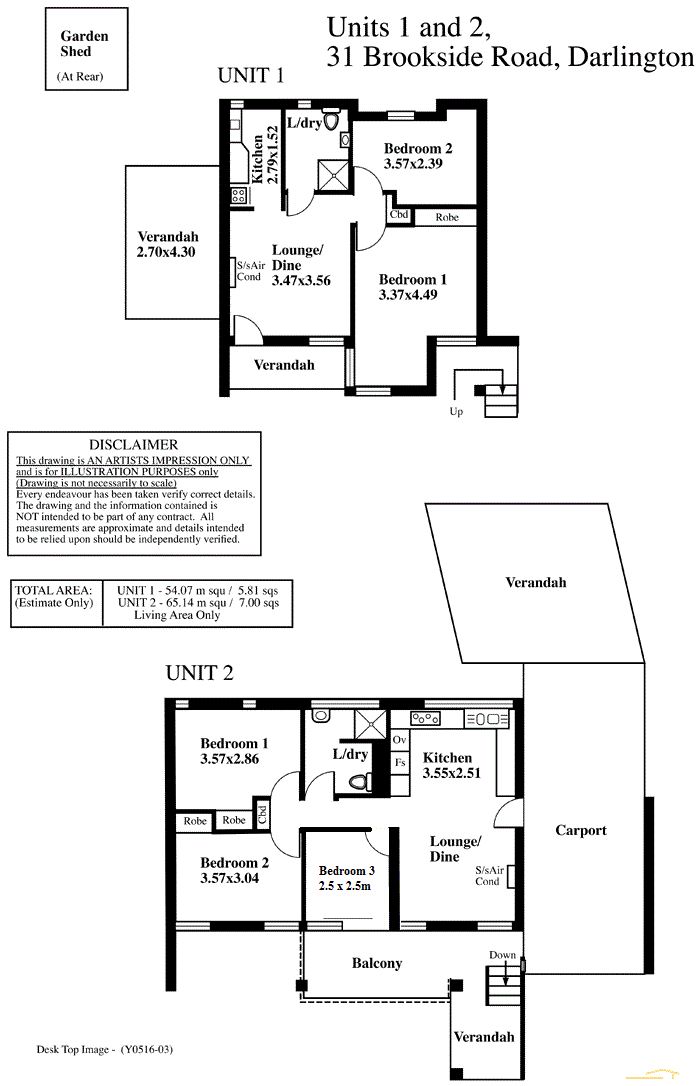
Two units on one title being ideally located close to Flinders Medical Centre and University in this superb tree studded silvan setting.

UNIT 1 Lower Level comprises: Two bedrooms, living area, split system A/C.

kitchen incorporates electric stove, range hood, built-ins.
Separate bathroom has shower recess, hand basin, laundry facilities and toilet. Fenced private grounds and car park area.

UNIT 2 Upper Level features: Three bedrooms two having built-ins, open plan living and dining area with split system A/C, updated kitchen has electric cooktop, Bianco oven, pantry and built in cupboards.
Tiled bathroom with shower recess, hand basin, toilet and laundry facilities. Balcony, covered outdoor area, under cover parking for 2 cars.

RLA 274363

Property Features

  • Garages 2
Century 21 Central Central
171 Goodwood Road
Millswood SA 5034
Ask About This Property


Local Information Darlington

Education in Darlington

Government Schools

  • Australian Science and Mathematics School
  • Darlington Primary School
  • Seaview High School
  • Bellevue Heights Primary School
  • Marion Primary School
  • Seaview Downs Primary School
  • Eden Hills Primary School
  • Clovelly Park Primary School

Private Schools

  • Sunrise Christian School - Marion Campus
  • Suneden Special School
  • Stella Maris Parish School
  • Our Lady of La Vang School
  • Westminster School
  • St Bernadette's School
  • Christ the King School
  • Sacred Heart College - Middle School Campus

Local Amenities in Darlington

Services

  • Sturt Post Office
  • Sturt South Post Office
  • Sturt River Post Office
  • Seacombe Gardens Post Office

Parks

  • Womens Memorial Playing Fields
  • Carrignane Park Reserve
  • Whicker Park
  • Bellevue Heights Reserve

Sport and Recreation

  • I S A S Oval
  • Brighton Oval
  • City Of Marion Golf Course
  • Flagstaff Hill Golf Course

Viticulture

  • Patritti Winery

Healthcare

  • Alwyndor Aged Care

Community Facilities

  • Institute Library
  • Brighton Library
  • Windsor Theatre
Australian Science and Mathematics School
Secondary Public Co-ed
Darlington Primary School
Primary Public Co-ed
Seaview High School
Secondary Public Co-ed
Bellevue Heights Primary School
Primary Public Co-ed
Marion Primary School
Primary Public Co-ed
School Website
Seaview Downs Primary School
Primary Public Co-ed
Eden Hills Primary School
Primary Public Co-ed
Clovelly Park Primary School
Primary Public Co-ed
Hamilton Secondary College
Secondary Public Co-ed
Flagstaff Hill R-7 School
Primary Public Co-ed
Warradale Primary School
Primary Public Co-ed
Brighton Primary School
Primary Public Co-ed
Seacliff Primary School
Primary Public Co-ed
Blackwood High School
Secondary Public Co-ed
Blackwood Primary School
Primary Public Co-ed
Kilparrin Teaching and Assessment School and Services
Special Public Co-ed
SA School for Vision Impaired
Special Public Co-ed
Ascot Park Primary School
Primary Public Co-ed
Daws Road Centre
Special Public Co-ed
Paringa Park Primary School
Primary Public Co-ed
Springbank Secondary College
Secondary Public Co-ed
Brighton Secondary School
Secondary Public Co-ed
Clapham Primary School
Primary Public Co-ed
School Website
Thiele Primary School
Primary Public Co-ed
Colonel Light Gardens Primary School
Primary Public Co-ed
Forbes Primary School
Primary Public Co-ed
School Website
Edwardstown Primary School
Primary Public Co-ed
Sheidow Park Primary School
Primary Public Co-ed
Craigburn Primary School
Primary Public Co-ed
Coromandel Valley Primary School
Primary Public Co-ed
Aberfoyle Park High School
Secondary Public Co-ed
School Website
Glenelg Primary School
Primary Public Co-ed
School Website
Braeview School R-7
Primary Public Co-ed
Belair Primary School
Primary Public Co-ed
Aberfoyle Hub R-7 School
Primary Public Co-ed
Woodend Primary School
Primary Public Co-ed
Hallett Cove East Primary School
Primary Public Co-ed
School Website
Sunrise Christian School - Marion Campus
Combined Private Co-ed
Suneden Special School
Special Private Co-ed
Stella Maris Parish School
Primary Private Co-ed
Our Lady of La Vang School
Special Private Co-ed
Westminster School
Combined Private Co-ed
St Bernadette's School
Primary Private Co-ed
Christ the King School
Primary Private Co-ed
School Website
Sacred Heart College - Middle School Campus
Combined Private Boys
School Website
St Teresa's School
Primary Private Co-ed
Meridian School Incorporated
Combined Private Co-ed
Marymount College
Combined Private Girls
St Peters Lutheran School
Primary Private Co-ed
St Therese Primary School
Primary Private Co-ed
School Website
Sacred Heart College
Combined Private Co-ed
School Website
Pilgrim School
Primary Private Co-ed
School Website
School of the Nativity
Primary Private Co-ed
Our Lady of Grace School
Primary Private Co-ed
Our Saviour Lutheran School Happy Valley Incorporated
Primary Private Co-ed
St John's Grammar School
Combined Private Co-ed
St Martin de Porres School
Primary Private Co-ed
Emmaus Christian College
Combined Private Co-ed
St Peter's Woodlands Grammar School Incorporated
Primary Private Co-ed
St Anthony's School
Primary Private Co-ed