Mitchell Park 4/162 Bradley Grove

Enquire Now
< >
Sold

Excellent Opportunity for 1st Home Buyers & Investors


  • Sold
    $215,000

    2 1 1
  • Share This Property


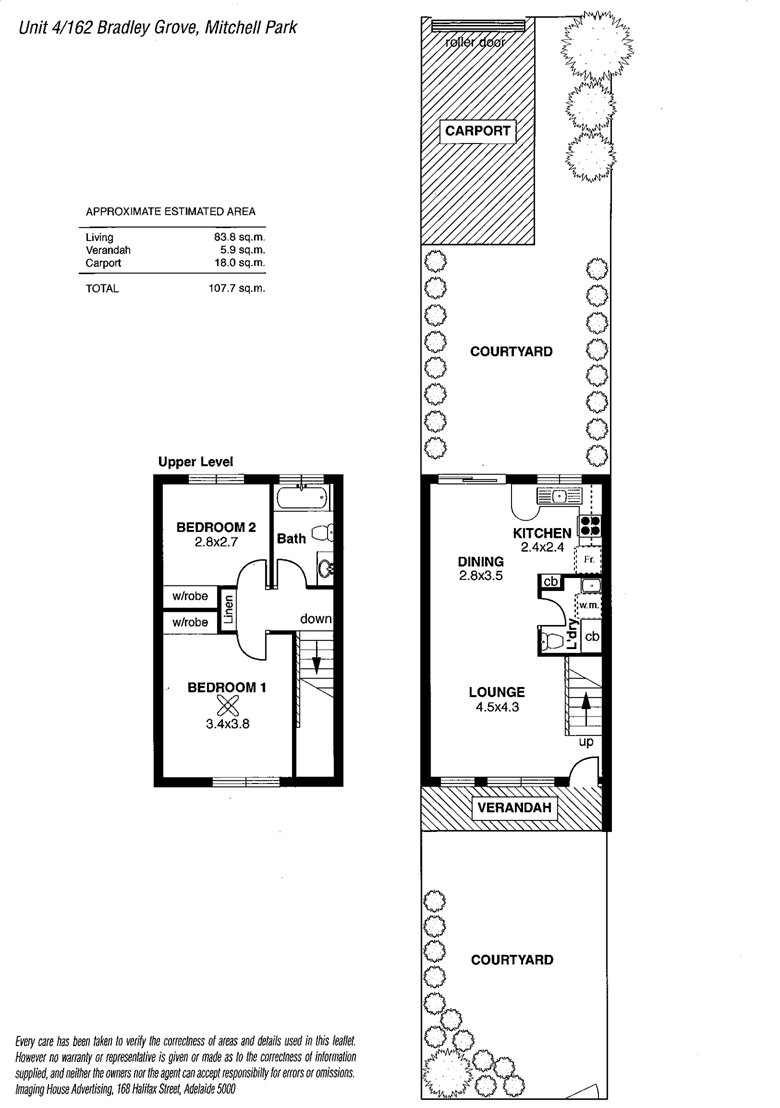
Delightful townhouse situated opposite the picturesque Mitchell Park reserve.

Offering two good size bedrooms - both with built in robes, full size bathroom, open plan living and dining. Ducted reverse cycle air conditioning and second toilet.

Large private front and rear courtyards with lock up carport.

A real purse pleaser in a convenient location.

Property Features

  • Uncovered Carspaces 1
Century 21 Central Central
171 Goodwood Road
Millswood SA 5034
Ask About This Property


Local Information Mitchell Park

Education in Mitchell Park

Government Schools

  • Clovelly Park Primary School
  • Hamilton Secondary College
  • Marion Primary School
  • Kilparrin Teaching and Assessment School and Services
  • SA School for Vision Impaired
  • Ascot Park Primary School
  • Daws Road Centre
  • Springbank Secondary College

Private Schools

  • Sacred Heart College - Middle School Campus
  • St Bernadette's School
  • Westminster School
  • Meridian School Incorporated
  • Our Lady of La Vang School
  • Suneden Special School
  • Sunrise Christian School - Marion Campus
  • Christ the King School

Local Amenities in Mitchell Park

Parks

  • Mitchell Park Reserve
  • Egan Reserve
  • Clovelly Park Reserve
  • Yanyarrie Reserve

Services

  • Clovelly Park Post Office
  • Marion Post Office
  • St Marys Post Office
  • St Marys South Post Office

Sport and Recreation

  • Ascot Park Bowling Club
  • Marion Boating Pool
  • I S A S Oval
  • Edwardstown Memorial Oval

Healthcares

  • Repatriation General Hospital
  • Alwyndor Aged Care

Viticulture

  • Hamiltons Winery